제품설명 > 내부칸막이

내부칸막이
홈 > 큐피클, 조립식판넬 > 내부칸막이

제품설명

페이지 정보

작성자 제작관리자 댓글 0건 조회 1,351회 작성일 17-08-20 07:11

본문

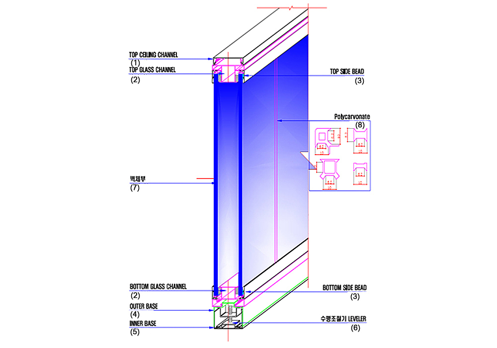
f1720dcbb61f75e4570d55c22b813bc8_1503180455_7786.jpg
f1720dcbb61f75e4570d55c22b813bc8_1503180605_831.jpg
f1720dcbb61f75e4570d55c22b813bc8_1503180613_5305.JPG
f1720dcbb61f75e4570d55c22b813bc8_1503180680_4055.jpg
 

댓글목록

등록된 댓글이 없습니다.

하단 바
대한글로벌개발
경기도 김포시 대곶면 대곶북로495 (김포공장) TEL 031-342-0031 FAX 031-342-0032
부산시 강서구 대저2동528-39(부산공장)TEL051-941-2931 FAX 051-941-2932
이메일 globalon01233@naver.com

Copyright ⓒ www.대한글로벌개발.com All rights reserved.

관리자로그인 현대이지웹 바로가기